03 8787 1300

Floorplan

Lifetime Collection

Positano 45

4
4
1
4
2
15m
https://media.ardenhomes.com.au/image/upload/v1768864821/home-designs/positano/floorplans/positano-45/H-AARPST10DA-Positano-45-floorplan-RHS.png
Lifetime Collection

Positano 45

4
4
1
4
2
15m
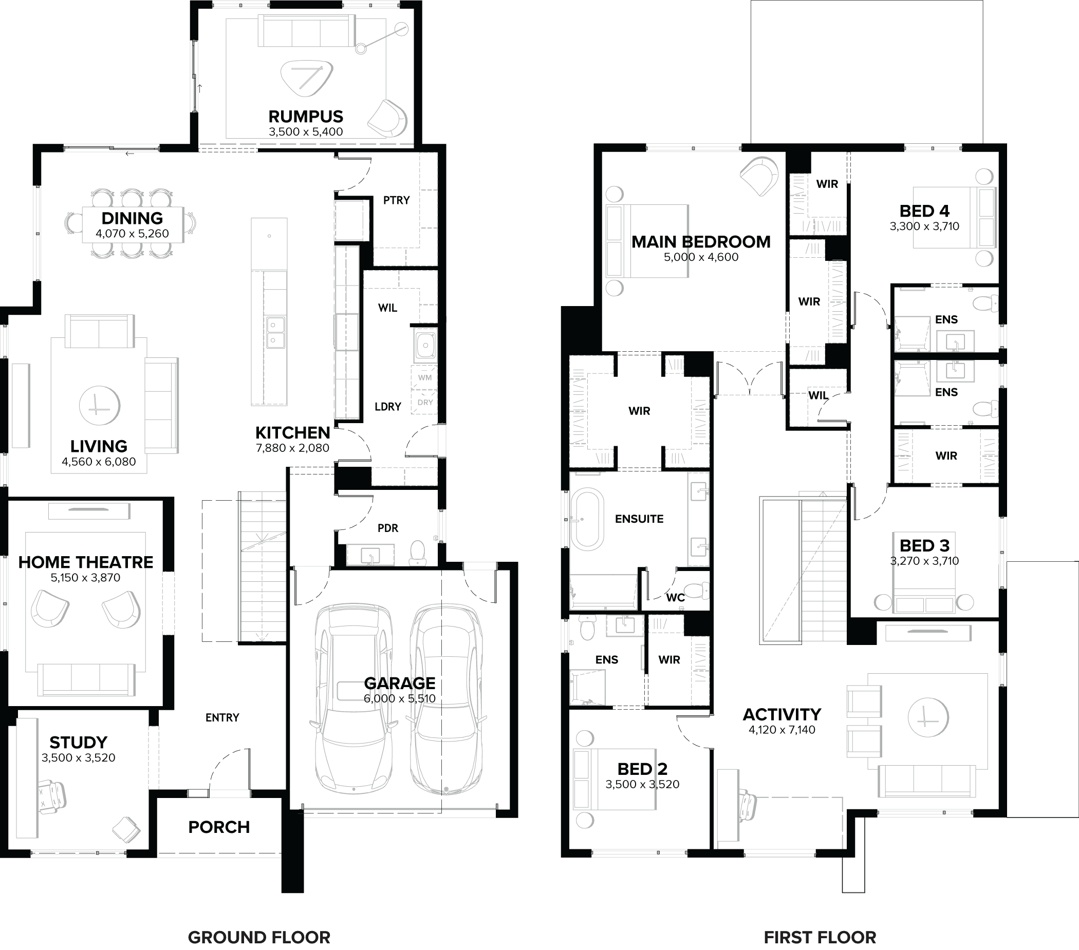
House Dimensions
House Width: 13m House Depth: 22.4m Total: 419.9m²
Room Dimensions
Kitchen
2.1m x 7.9m
Dining
5.3m x 4.1m
Living
6.1m x 4.6m
Rumpus
5.4m x 3.5m
Main Bed
4.6m x 5m
Bed 2
3.5m x 3.5m
Bed 3
3.7m x 3.3m
Bed 4
3.7m x 3.3m
Home Theatre
3.9m x 5.2m
Activity
7.1m x 4.1m
Study
3.5m x 3.5m
Garage
5.5m x 6m

See all versions and options available for this home design family.

View Home Design

Display Location

Positano 45 home design kitchen
Positano 45 home design living/dining
Positano 45 home design home theater
Positano 45 home design bathroom
Positano 45 home design living/dining/kitchen
Positano 45 home design dining
Positano 45 home design outdoor living
Positano 45 home design kitchen
Positano 45 home design kitchen/dining
Positano 45 home design kitchen
Positano 45 home design entry
Positano 45 home design living
Positano 45 home design laundry
Positano 45 home design childrens activities
Positano 45 home design bathroom
Positano 45 home design kitchen
Positano 45 home design home office

Kinley Estate

7-9 Honour Avenue, Lilydale VIC 3140
Get Directions
Monday
11am - 5pm
Tuesday
11am - 5pm
Wednesday
11am - 5pm
Thursday
11am - 5pm
Friday
11am - 5pm
Saturday
11am - 5pm
Sunday
11am - 5pm
CLOSED: Good Friday
PAVILION CLOSING SOON: Thurs 30 April 2026
View Display Location

Contact Us

Chat to us to book an appointment

Please complete the enquiry form to enquire about one of our homes on display or to book an appointment at this display location with a building & design consultant. 

Alternatively give a building & design consultant a call or email using the details below.