03 8787 1300

Floorplan

Lifetime Collection

Astor 54

4
4
1
4
2
15.2m
https://media.ardenhomes.com.au/image/upload/v1768864046/home-designs/astor/floorplans/astor-54/H-AARASR20DA-Astor-54-floorplan-LHS.png
Lifetime Collection

Astor 54

4
4
1
4
2
15.2m
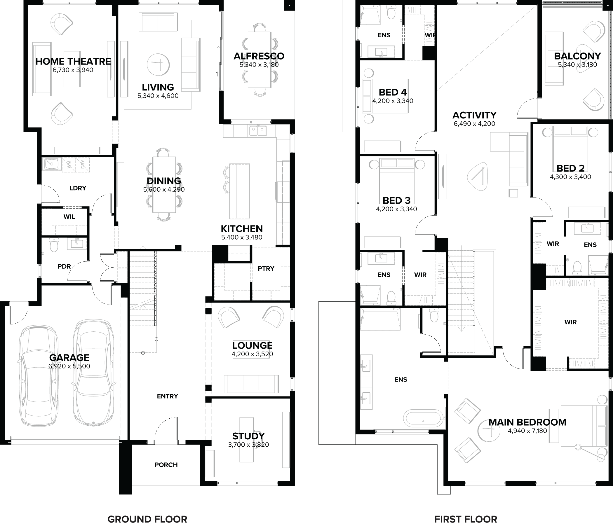
House Dimensions
House Width: 21.8m House Depth: 13.3m Total: 497.2m²
Room Dimensions
Kitchen
3.5m x 5.4m
Dining
4.3m x 5.6m
Living
4.6m x 5.3m
Main Bed
7.2m x 4.9m
Bed 2
3.4m x 4.3m
Bed 3
3.3m x 4.2m
Bed 4
3.3m x 4.2m
Activity
4.2m x 6.5m
Lounge
3.5m x 4.2m
Home Theatre
3.9m x 6.7m
Alfresco
3.2m x 5.3m
Double Garage
5.5m x 6.9m
Balcony
3.2m x 5.3m

See all versions and options available for this home design family.

View Home Design

Display Location

Astor 54 home design - Living
Astor 54 home design - Butlers Pantry
Astor 54 home design - Outdoor Living
Astor 54 home design - Entry/Living - Classic Design Style.
Astor 54 home design - Home Theatre
Astor 54 home design - Living/Dining/Outdoor Living
Astor 54 home design - Kitchen/Pantry
Astor 54 home design - Kitchen/Dining
Astor 54 home design - Ensuite Bathroom

Bankside Estate

68-70 Bankside Boulevard, Rowville VIC 3178
Get Directions
Monday
11am - 5pm
Tuesday
11am - 5pm
Wednesday
11am - 5pm
Thursday
11am - 5pm
Friday
11am - 5pm
Saturday
11am - 5pm
Sunday
11am - 5pm
CLOSED: Good Friday
View Display Location

Contact Us

Chat to us to book an appointment

Please complete the enquiry form to enquire about one of our homes on display or to book an appointment at this display location with a building & design consultant. 

Alternatively give a building & design consultant a call or email using the details below.