03 8787 1300

Floorplan

Lifetime Collection

Verona 40

4
2
1
3
2
14m
https://media.ardenhomes.com.au/image/upload/v1768866539/home-designs/verona/floorplans/verona-40/H-AARVRN20DA-Verona-40-floorplan-RHS.png
Lifetime Collection

Verona 40

4
2
1
3
2
14m
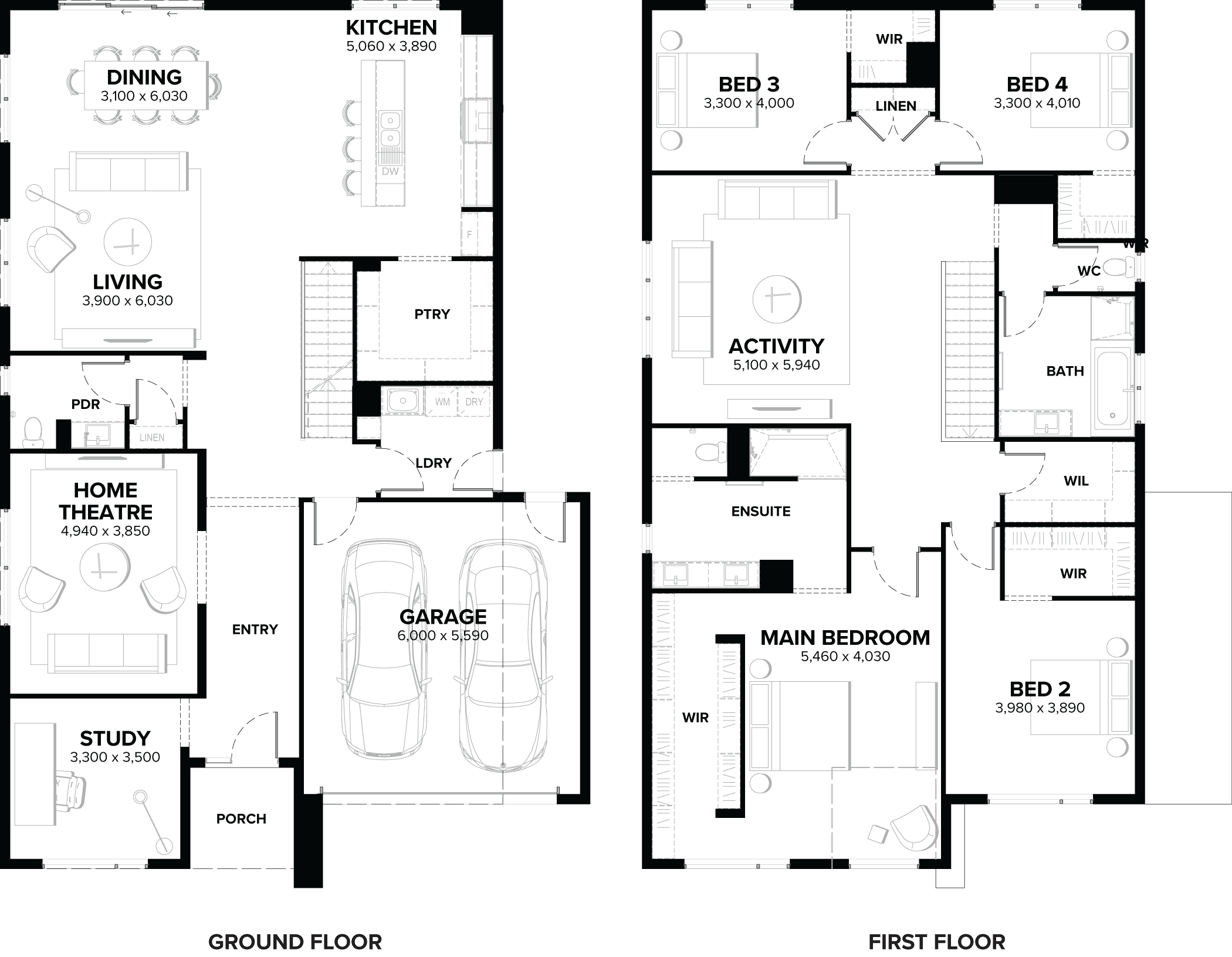
House Dimensions
House Width: 18.3m House Depth: 12.2m Total: 372.1m²
Room Dimensions
Kitchen
3.9m x 5.1m
Dining
6m x 3.1m
Living
6m x 3.9m
Home Theatre
3.9m x 4.9m
Study
3.5m x 3.3m
Garage
5.6m x 6m
Main Bed
4m x 5.5m
Bed 2
3.9m x 4m
Bed 3
4m x 3.3m
Bed 4
4m x 3.3m
Activity
5.9m x 5.1m

See all versions and options available for this home design family.

View Home Design

Display Location

Verona 40 house design in Urban style - Bedroom
Verona 40 house design in Urban style - Kitchen
Verona 40 house design in Urban style - Home Theatre
Verona 40 house design in Urban style - Living
Verona 40 house design in Urban style - Living / Dining
Verona 40 house design in Urban style - Bathroom
Verona 40 house design in Urban style - Kitchen

Redstone Estate

26-28 Origin Drive, Sunbury VIC 3429
Get Directions
Monday
11am - 5pm
Tuesday
11am - 5pm
Wednesday
11am - 5pm
Thursday
11am - 5pm
Friday
11am - 5pm
Saturday
11am - 5pm
Sunday
11am - 5pm
Please note: This display centre is closed Thurs 7 + Fri 8 May.
View Display Location

Contact Us

Chat to us to book an appointment

Please complete the enquiry form to enquire about one of our homes on display or to book an appointment at this display location with a building & design consultant. 

Alternatively give a building & design consultant a call or email using the details below.

Our Consultants